Drawings
Technical drawing of structural sections labeled SE-101 to SE-108 with details DE-201 and DE-202, showing measurements and construction elements.
Architectural section drawing labeled SE-102, featuring sections SE-106, SE-107, SE-108, and details DE-204 and DE-205, with grid lines and measurements.
Technical architectural drawing displaying multiple sections, labeled "Section SE-102," "Section SE-106," "Section SE-107," and "Section SE-108." Dimensions and structural details are included with horizontal and vertical measurements. Diagram includes detail label "Detail DE-206."
Technical architectural drawing of a section labeled as SE-104, illustrating structural details, dimensions, and labeled sections SE-106, SE-107, and SE-108.
Architectural section drawing labeled "SECTION SE-105" with structural details and dimensions.
Architectural section diagram labeled SE-106 with detailed views DE-211 to DE-215, showing structural details and dimensions.
Technical architectural drawing with labeled sections and details on a black background.
Architectural section drawing labeled with section numbers, detailing various structural elements and dimensions, on a black background.
Architectural section detail drawing labeled DE-201, showing structural components, dimensions, and material annotations.
Technical drawing of structural detail DE-202 showing cross-section measurements and labels for construction design.
Technical architectural drawing detail DE-203 showing structural components and measurements.
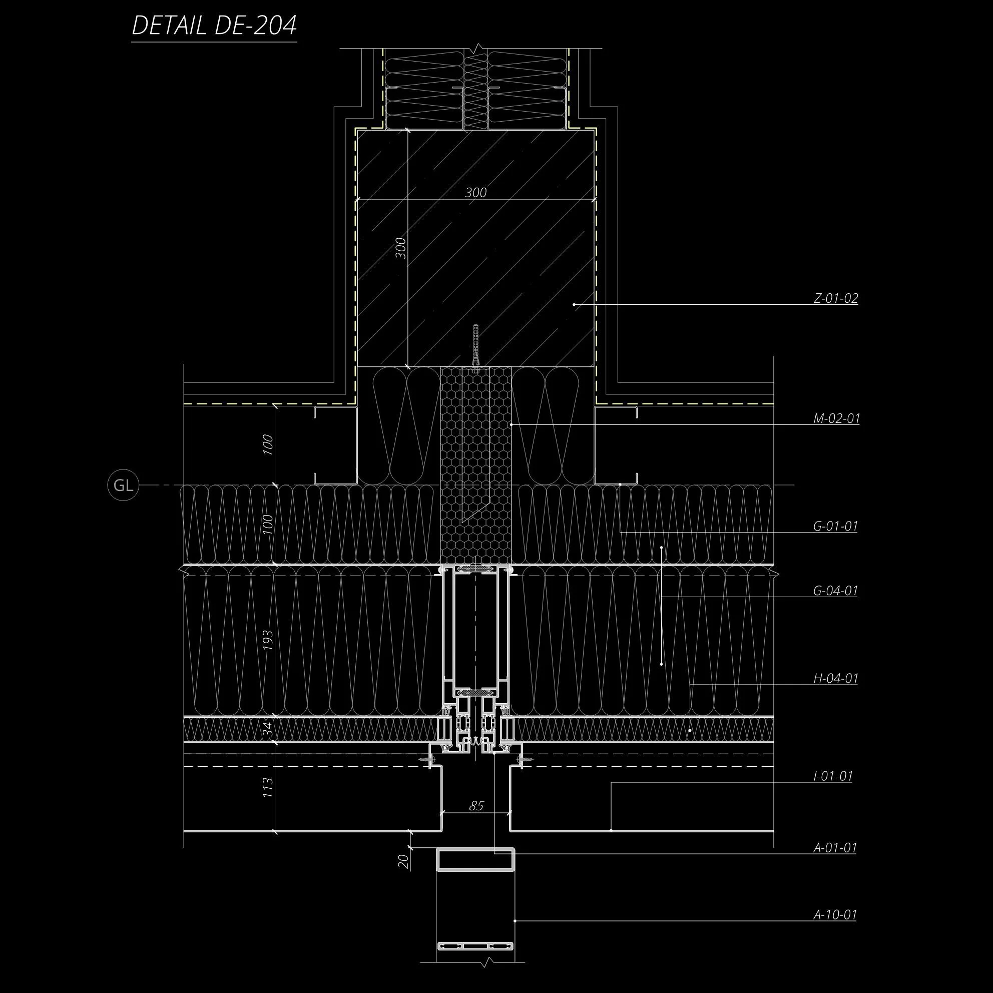
Architectural detail drawing DE-204 showing cross-sectional view of a building element with labeled layers, materials, and dimensions.
Technical drawing of architectural detail DE-205 with dimensions and annotations
Technical architectural drawing labeled "DETAIL DE-206" showing detailed cross-section with measurements and annotations.
Technical architectural detail drawing with labeled dimensions and structure components, displayed on a black background, titled "DETAIL DE-207."
Architectural detail drawing DE-208 with labeled dimensions, depicting structural and material components for construction.
Technical drawing of a construction detail labeled DE-209 with measurements and material annotations. The diagram includes sections such as insulation and structural components, marked with labels like A-03:04, G-01:01, and M-02:01. Lines and dimensions denote specific architectural elements.
Technical drawing labeled "Detail DE-210" with diagrams of a structural component, including measurements and labels such as G-01-01, Z-01-02, and C-01-02.
Architectural section drawing labeled Detail DE-211, showing various measurements and structural elements in cross-section view.
Architectural detail drawing labeled "Detail DE-212" with measurements and technical notations.
Technical drawing of construction detail DE-213 with measurements and annotations on black background.
Architectural detail drawing titled "DETAIL DE-214" featuring a cross-section view. It includes various measurements, labels, and technical elements like insulation, structural components, and fasteners. The design shows complex layering and precise alignment of building materials.
Detailed architectural drawing labeled "DETAIL DE-215" showing dimensions and technical components of a structural section.
Architectural cross-section detail labeled DE-216 with technical specifications and measurements.
Architectural detail drawing labeled "DETAIL DE-217" illustrating structural elements with dimensions and annotations on a black background.
Architectural technical drawing labeled "Detail DE-218" showing cross-sectional view of a building structure with dimensions and material specifications.
Architectural detail drawing labeled "DETAIL DE-219" showing cross-section of building elements including walls, insulation, and structural components with dimensions and annotations.
Architectural detail drawing labeled "DETAIL DE-220" showing section view with measurements, material layers, and construction details. Annotations and labels indicate various components.
Technical architectural drawing labeled "DETAIL DE-221" showing dimensions and construction details for building elements, including walls, insulation, and structural components.
Architectural technical drawing showing detail DE-222 with measurements and construction components. Includes section views, dimensions, and structural elements like beams and walls.
Ug – 1.00 W/m2K Uja – 3.24 W/m2K Ujb – 0.11 W/m2K Ujc – 1.44 W/m2K Ujd – 2.54 W/m2K Up – 0.10 W/m2K
Condensation Risk. Boundary Conditions 1
3D thermal analysis of a building wall section highlighting temperature distribution in various colors, with a scale on the left indicating temperature ranges from -4°C to 20°C.
Condensation Risk. Boundary Conditions 2
3D diagram of a building facade section showing thermal analysis with color gradient representing temperature variations, including a vertical scale in Celsius.